
Ravenscourt Extension
Patchway, Bristol
1930s Bay-Fronted Semi-Detached House, Ravenscourt Rd
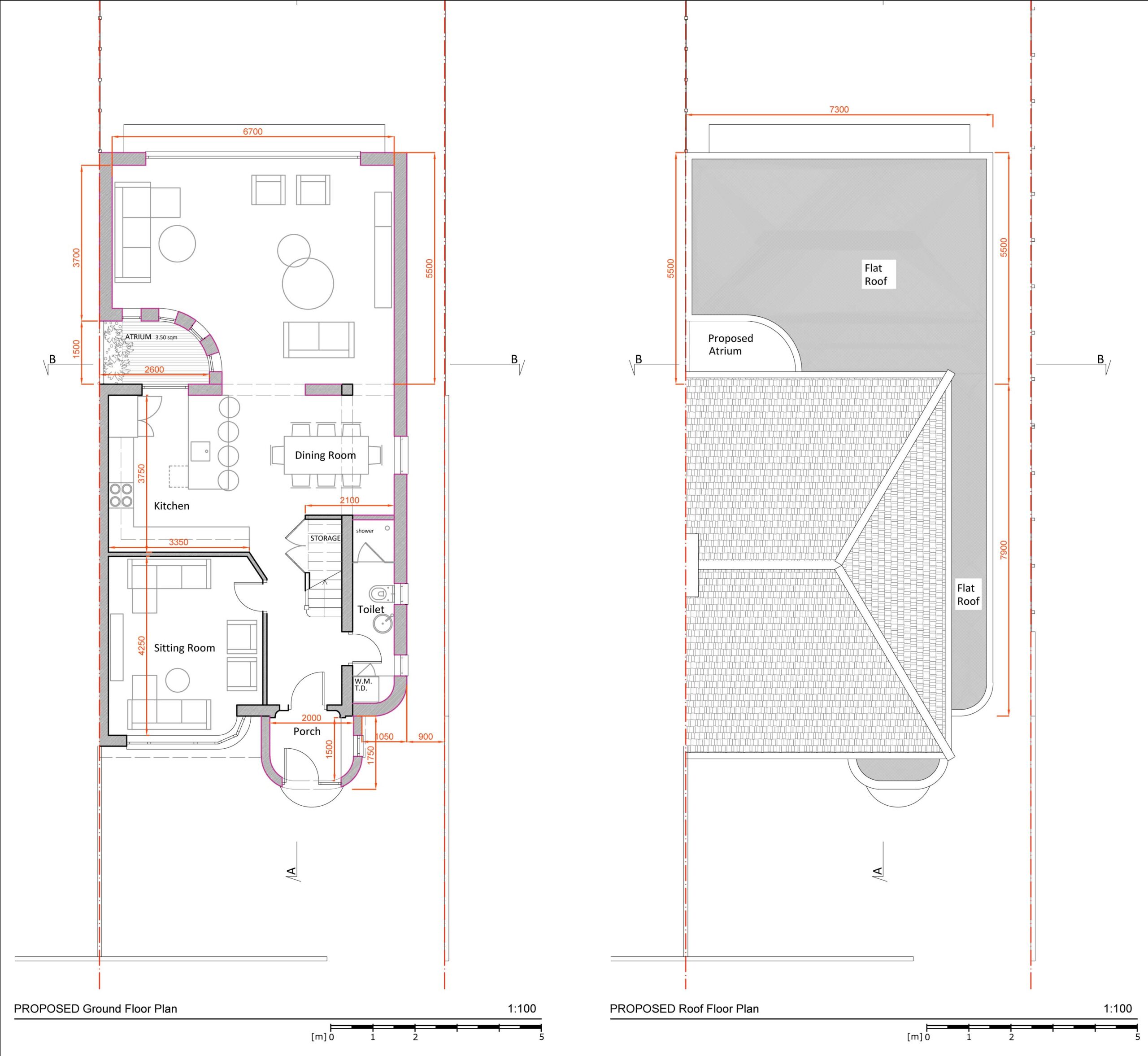
This project expands a traditional 1930s semi-detached house through a series of ground-floor extensions and a subtle internal atrium, creating new spatial experiences without imposing a foreign character.
The house’s original features — a curved bay window, recessed entrance, and brick detailing — informed the design of the new porch and side extension. Rounded corners and brickwork reinterpret these elements, establishing continuity while marking the addition as contemporary yet sympathetic.
Inside, the ground-floor layout was completely reorganised to suit modern family living. A semi-open kitchen flows into the dining area, while a spacious living room connects visually and physically to the rear garden. A small atrium, placed at the junction of the existing house and new extension, introduces daylight, fresh air, and a fragment of garden inside, acting as both a natural separator between kitchen and living areas and a subtle architectural feature.
The result is an expanded home that honours its 1930s heritage while enhancing light, flow, and everyday experience — a quiet transformation that balances familiarity with modern spatial life.
