
Loft Conversion
Kellaway Avenue, Bristol
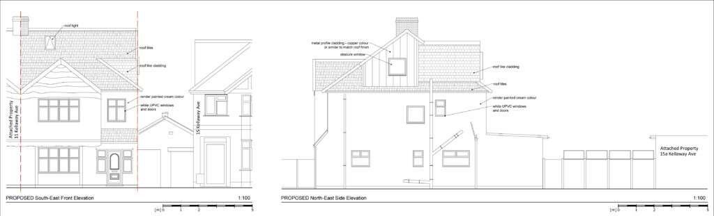
This project involves a loft conversion to a 1930s semi-detached house in an area of distinctive character. The brief was to provide additional bedroom space for a growing family while respecting the proportions and roof form of the original house.
The design works within the existing hipped roof, introducing a carefully scaled rear dormer to maximise usable space without altering the street-facing appearance. A small side dormer is added to bring natural light and headroom to the new staircase, improving circulation and comfort within the loft.
Materials and detailing are kept restrained and sympathetic to the existing house, ensuring the extension reads as a considered addition rather than an overstatement. The result is a practical, well-integrated loft conversion that meets the family’s needs while preserving the character of the surrounding neighbourhood.
